
In den drei Obergeschossen des Gutshauses befinden sich insgesamt sieben Wohnungen zur Miete.
Diese reichen von 45 qm Studios über 90 qm Dachgeschosswohnungen mit Dachterrasse bis hin zu großzügigen 110 qm großen Familienwohnungen. Für größere Gruppen ist auch eine Anmietung ganzer Geschosse mit zwei oder drei Wohnungen möglich.
Für maximale Privatsphäre kann auch das ganze Herrenhaus inklusive des weitläufigen Erdgeschosses und des gesamten Gutsparks gemietet werden. Das Grundstück wird auf diese Weise zu einer ausschließlich von den Mietern bewohnten Insel inmitten der Flachwassermeeresbucht „Üselitzer Wiek“.
Um sich nach diesen Buchungsoptionen im Detail zu erkundigen, kontaktieren Sie uns unter: info@ueselitz.de
– 45–110 qm Wohnungen
– Anmietung ganzer Geschosse möglich
– Herrenhaus inklusive Erdgeschoss und Gutspark













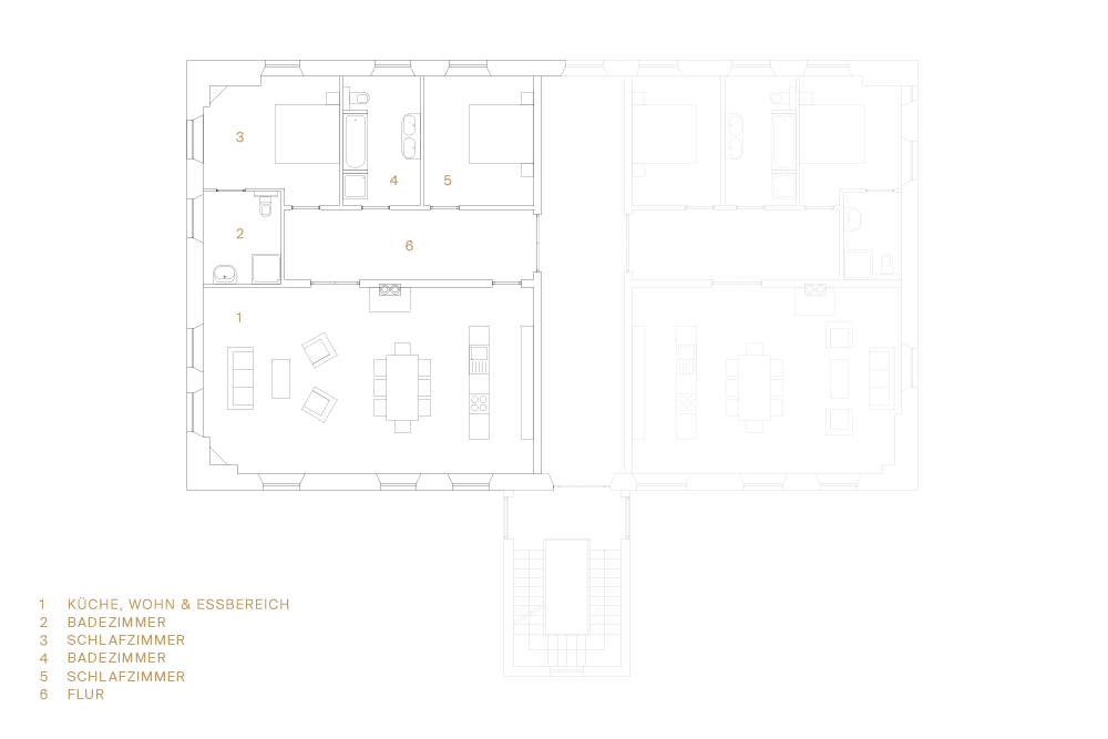
Wohnzimmer
Wohnzimmer
Wohnzimmer
Wohnzimmer (Essbereich)
Badezimmer
Badezimmer
Schlafzimmer
Schlafzimmer
Badezimmer
Badezimmer
Schlafzimmer
Schlafzimmer
Wohnung 1. OG, links
















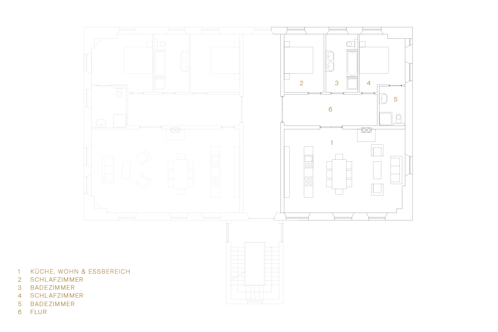
Wohnzimmer (Küche & Essbereich)
Wohnzimmer
Wohnzimmer
Wohnzimmer
Wohnzimmer
Wohnzimmer
Flur
Schlafzimmer & Badezimmer
Badezimmer
Badezimmer
Schlafzimmer
Schlafzimmer
Schlafzimmer
Schlafzimmer
Badezimmer
Wohnung 1. OG, rechts










Wohnzimmer mit Küche & Essbereich
Wohnzimmer
Wohnzimmer
Schlafzimmer
Schlafzimmer
Badezimmer
Schlafzimmer
Badezimmer
Badezimmer
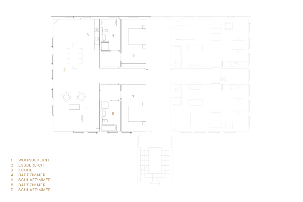
Wohnung 2. OG, links




Wohn- und Essbereich
Küche & Essbereich
Schlafbereich und Badezimmer
Wohnung 2. OG, rechts (1)



Küche, Ess- und Wohnbereich
Ess- und Schlafbereich, Badezimmer
Wohnung 2. OG, rechts (2)








Wohnbereich
Schlafbereich & Badezimmer
Ausblick von der Terrasse
Badezimmer
Badezimmer
Schlafbereich
Terrasse und Küche
Wohnung DG, links







Ess- und Wohnbereich
Schlaf- und Wohnbereich
Küche
Küche
Badezimmer
Terrasse
Wohnung DG, rechts
ÜBERSICHT WOHNUNGEN
1. Obergeschoss
Wohnung 1. OG, links
2. Obergeschoss
Wohnung 2. OG, links
Dachgeschoss
Wohnung DG, links
Wohnung 1. OG, rechts
Wohnung 2. OG, rechts (1)
Wohnung DG, rechts
Wohnung 2. OG, rechts (2)

In den drei Obergeschossen des Gutshauses befinden sich insgesamt sieben Wohnungen zur Miete.
Diese reichen von 45 qm Studios über 90 qm Dachgeschosswohnungen mit Dachterrasse bis hin zu großzügigen 110 qm großen Familienwohnungen. Für größere Gruppen ist auch eine Anmietung ganzer Geschosse mit zwei oder drei Wohnungen möglich.
Für maximale Privatsphäre kann auch das ganze Herrenhaus inklusive des weitläufigen Erdgeschosses und des gesamten Gutsparks gemietet werden. Das Grundstück wird auf diese Weise zu einer ausschließlich von den Mietern bewohnten Insel inmitten der Flachwassermeeresbucht „Üselitzer Wiek“.
Um sich nach diesen Buchungsoptionen im Detail zu erkundigen, kontaktieren Sie uns unter: info@ueselitz.de
– 45–110 qm Wohnungen
– Anmietung ganzer Geschosse möglich
– Herrenhaus inklusive Erdgeschoss und Gutspark













Wohnzimmer
Wohnzimmer
Wohnzimmer
Wohnzimmer (Essbereich)
Badezimmer
Badezimmer
Schlafzimmer
Schlafzimmer
Badezimmer
Badezimmer
Schlafzimmer
Schlafzimmer
Wohnung 1. OG, links
















Wohnzimmer (Küche & Essbereich)
Wohnzimmer
Wohnzimmer
Wohnzimmer
Wohnzimmer
Wohnzimmer
Flur
Schlafzimmer & Badezimmer
Badezimmer
Badezimmer
Schlafzimmer
Schlafzimmer
Schlafzimmer
Schlafzimmer
Badezimmer
Wohnung 1. OG, rechts










Wohnzimmer mit Küche & Essbereich
Wohnzimmer
Wohnzimmer
Schlafzimmer
Schlafzimmer
Badezimmer
Schlafzimmer
Badezimmer
Badezimmer
Wohnung 2. OG, links




Wohn- und Essbereich
Küche & Essbereich
Schlafbereich und Badezimmer
Wohnung 2. OG, rechts (1)



Küche, Ess- und Wohnbereich
Ess- und Schlafbereich, Badezimmer
Wohnung 2. OG, rechts (2)








Wohnbereich
Schlafbereich & Badezimmer
Ausblick von der Terrasse
Badezimmer
Badezimmer
Schlafbereich
Terrasse und Küche
Wohnung DG, links







Ess- und Wohnbereich
Schlaf- und Wohnbereich
Küche
Küche
Badezimmer
Terrasse
Wohnung DG, rechts
ÜBERSICHT WOHNUNGEN
1. Obergeschoss
Wohnung 1. OG, links
Wohnung 1. OG, rechts
2. Obergeschoss
Wohnung 2. OG, links
Wohnung 2. OG, rechts (1)
Wohnung 2. OG, rechts (2)
Dachgeschoss
Wohnung DG, links
Wohnung DG, rechts
Kontakt
Für Buchungsanfragen und Beratung zu Ihrer Feier oder Veranstaltung, kontaktieren Sie uns unter: info@ueselitz.de
Adresse
Gut Üselitz
Üselitz 2, 18574 Poseritz
Rügen
© 2020 Gut Üselitz
Impressum
Datenschutz
Kontakt
Für Buchungsanfragen und Beratung zu Ihrer Feier oder Veranstaltung, kontaktieren Sie uns unter: info@ueselitz.de
Adresse
Gut Üselitz
Üselitz 2, 18574 Poseritz
Rügen
© 2020 Gut Üselitz
Impressum
Datenschutz